Вы здесь

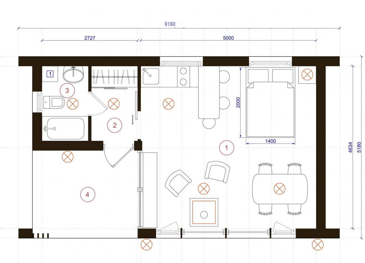
Арт 1 К- 150 9.16×5.18, 36.00м2

Модульный жилой дом общей площадью 36 м2 – отличный вариант для молодой семьи.

 

Комплект "Элит"

116 502 руб.

смотреть полностью
Фундамент:

Буронабивной.

Пол:

Утепление – 150 мм

Кровля:

Металлопрофиль.

Окна:

Окна ПВХ (однокамерные)

Двери:

Входная- ПВХ
Межкомнатные-деревянные наборные глухие

Фундамент:

Буронабивной.

Стены:

Толщина стены 170 мм
Устройство вентиляционного зазора
ОСП
Усиленная конструкция наружных стен 1 этажа дома 35х150 мм
Гидро-ветроизоляционная мембрана
Утепление минеральной ватой 150 мм (плита)
Пиломатериал технической сушки
Пароизоляционная мембрана
Внутренняя обшивка: ОСП 9 мм + ГКЛВ 12.5 мм.
Наружная обшивка: Имитация бруса 17 мм

Полы:

Толщина конструкции 190 мм
ОСП - 22 мм
Балки - брус 150х50 с шагом 400мм
Пароизоляционная мембрана
Пиломатериал технической сушки
Утепление минеральной ватой 150 мм;(плита)
Гидро-ветроизоляционная мембрана
Черновой пол 10 мм

Перегородка:

Толщина перегородки 121 мм
Пароизоляция
Пиломатериал технической сушки
Пароизоляция
Обшивка: ОСП 9 мм + ГКЛВ 12.5 мм.

Кровля:

Металлопрофиль.

Входная дверь:

ПВХ

Межкомнатные двери:

Деревянные наборные глухие

Окна:

Окна ПВХ однокамерные

Отливы:

Отливы (белые/коричневые) по фронтону, фундаменту и подоконные с покрытием полиэстер

ХАРАКТЕРИСТИКИ

Технология Каркас
Габаритные размеры 9.16×5.18
Площадь застройки (м.кв.) 47.50
Общая площадь (м.кв.) 36.00
Срок строительства, дн. 30
Печать
1
1

116 502 руб.

По Вашему желанию возможно внести любые изменения в базовый проект, включая перепланировку, что позволит полностью преобразить дом как снаружи, так и внутри.

* Кредит на покупку домокомплекта от Белагропромбанка. Срок кредитования до 15 лет. Выгодная ставка по кредиту. Расчет ориентировочный и не является окончательным. Не является офертой.

Подпишись на email-рассылку