Вы здесь
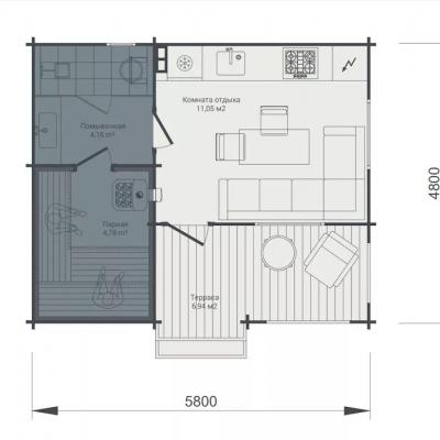
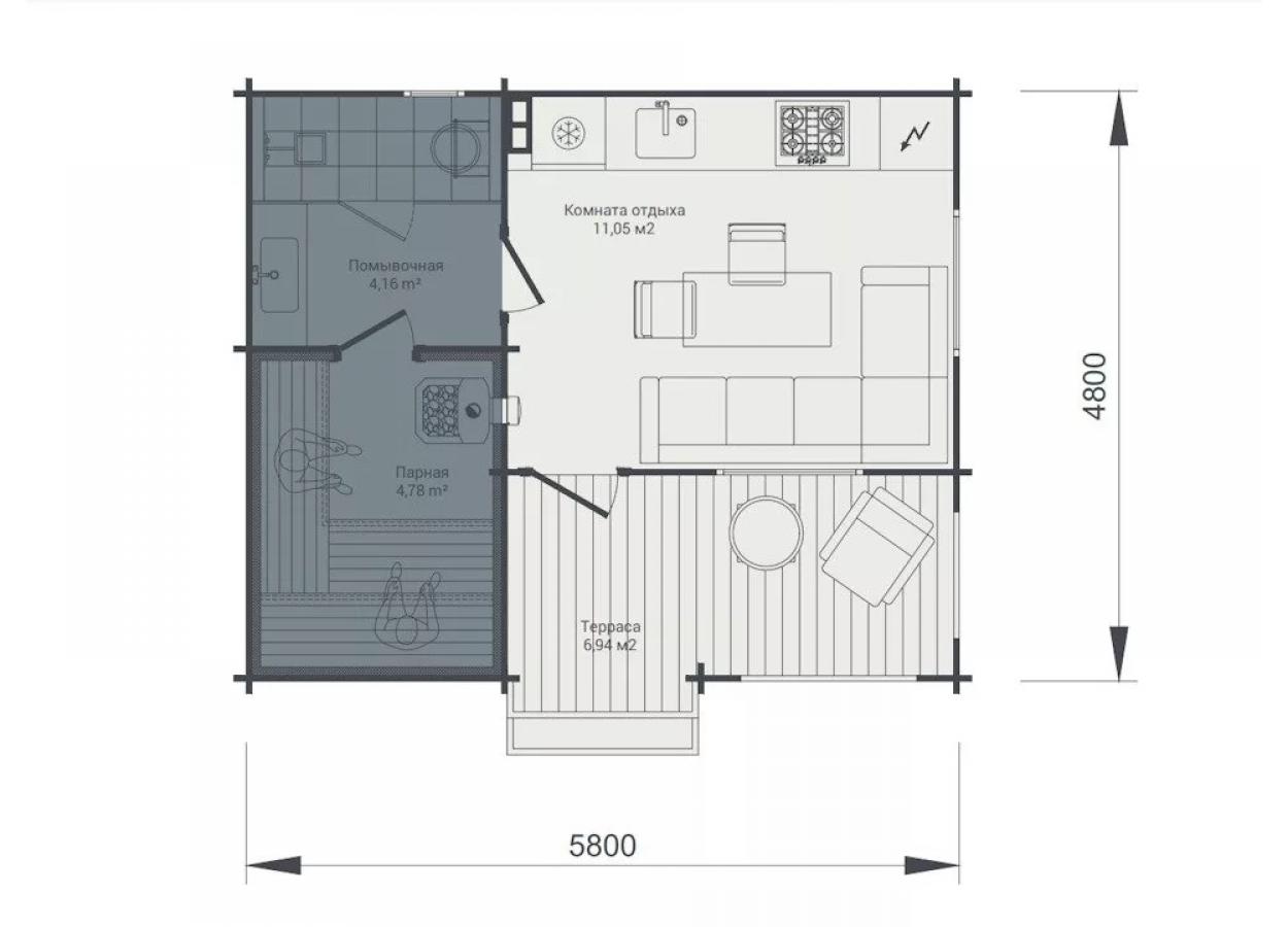
С легким паром 5.8×4.8, 27.84м2
цена от
руб. / мес *
Новинка
Возможно, это сама судьба привела вас к настоящему проекту бани, чтобы показать идеальный вариант храма здоровья и наслаждений. И мы не побоимся таких громких определений. Присмотритесь и вы не захотите покидать этот храм.
Главная особенность новый бани – это простор. Здесь все ориентировано на свободу ощущений, чтобы ни одна деталь не испортила впечатлений, не заставила пожалеть. Если в бане есть терраса – то она большая (5,6м²), чтобы разместиться, не сталкиваясь локтями. Если в строительстве бани подумали о комнате отдыха (10,9м²), то она вмещает всех гостей, сколько бы их не было. Если в планировке бани предусмотрели душевую (4,0м²), то для того, чтобы пользоваться ей было максимально удобно, никого не стесняя.
А парилка (5,2м²), сердце любой бани из бруса, располагается настолько удачно, что имеет печь с возможностью протопки из тамбура, сразу на входе. Одновременно обогревая и комнату отдыха. Оцените, как это удобно.
Не стоит играть с судьбой, выбирайте проверенные, продуманные решения. И пусть иронией судьбы станет не случайность, а ваша новая отличная деревянная баня.
|
С легким паром 23 163 руб. смотреть полностью |
|---|
| Наружные стены |
|
Профилированный строганный мини-брус камерной сушки сечением 44х135 мм, влажность 12-14%, монтируется по технологии четырехстороннего замкового паза с ветровым замком (теплый не продуваемый угол). |
| Балки перекрытия |
|
Доска из древесины хвойных пород дерева естественной сушки сечением 50х150 мм, (шаг 600 мм), крепятся при помощи металлических опор бруса. |
| Полы |
|
Доска пола 27х135, влажность 12-14%. |
| Стропильная система/прогоны |
|
Строганный мини-брус камерной сушки сечением 45х140 мм, влажность 12-14% |
| Кровельный настил |
|
Имитация бруса камерной сушки толщиной 20 мм, влажность 12-14% |
| Кровля |
|
Гибкая черепица SHINGLAS, серия Оптима (цвет красный, серый или коричневый), монтируется на кровельный настил |
| Подвенечный оклад (обвязка) |
|
Брус из древесины хвойных пород дерева естественной сушки сечением 100х150 мм |
| Наружные стены (17 венцов - высота стены 2,295 м), фронтоны и перегородки |
|
Профилированный строганный мини-брус камерной сушки сечением 44х135 мм, влажность 12-14%, монтируется по технологии четырехстороннего замкового паза с ветровым замком (теплый не продуваемый угол). |
| Балки перекрытия (лаги) |
|
Доска из древесины хвойных пород дерева естественной сушки сечением 50х150 мм, (шаг 600 мм), крепятся при помощи металлических опор бруса. |
| Полы |
|
Доска пола 27х135, влажность 12-14%. |
| Стропильная система/прогоны |
|
Строганный мини-брус камерной сушки сечением 45х140 мм, влажность 12-14% |
| Кровельный настил |
|
Имитация бруса камерной сушки толщиной 20 мм, влажность 12-14% |
| Кровля |
|
Гибкая черепица SHINGLAS, серия Оптима (цвет красный, серый или коричневый), монтируется на кровельный настил |
| Ветровая и торцевая планки |
|
Строганная доска камерной сушки из хвойных пород дерева мм, влажность 12-14% |
| Входная дверь |
|
Деревянный филенчатый дверной блок из массива сосны 2080х880 мм со всей необходимой фурнитурой, петли, врезной замок. |
| Межкомнатные двери (если предусмотрены проектом) |
|
Деревянный филенчатый дверной блок из массива сосны 2080х880 мм со всей необходимой фурнитурой; петли, ручка, фиксатор. |
| Окна |
|
Деревянный оконный блок из массива сосны с одинарным остеклением h - 1000 мм (укомплектован ручками и запором). |
| Наличники |
|
Строганная доска камерной сушки из хвойных пород дерева мм, влажность 12-14%. |
ХАРАКТЕРИСТИКИ
| Технология | Брус |
|---|---|
| Габаритные размеры | 5.8×4.8 |
| Площадь застройки (м.кв.) | 27.84 |
| Общая площадь (м.кв.) | 27.84 |
| Срок строительства, дн. | 30 |
ВЫБЕРИТЕ КОМПЛЕКТАЦИЮ
23 163 руб.
По Вашему желанию возможно внести любые изменения в базовый проект, включая перепланировку, что позволит полностью преобразить дом как снаружи, так и внутри.
* Кредит на покупку домокомплекта от Белагропромбанка. Срок кредитования до 15 лет. Выгодная ставка по кредиту. Расчет ориентировочный и не является окончательным. Не является офертой.