Вы здесь
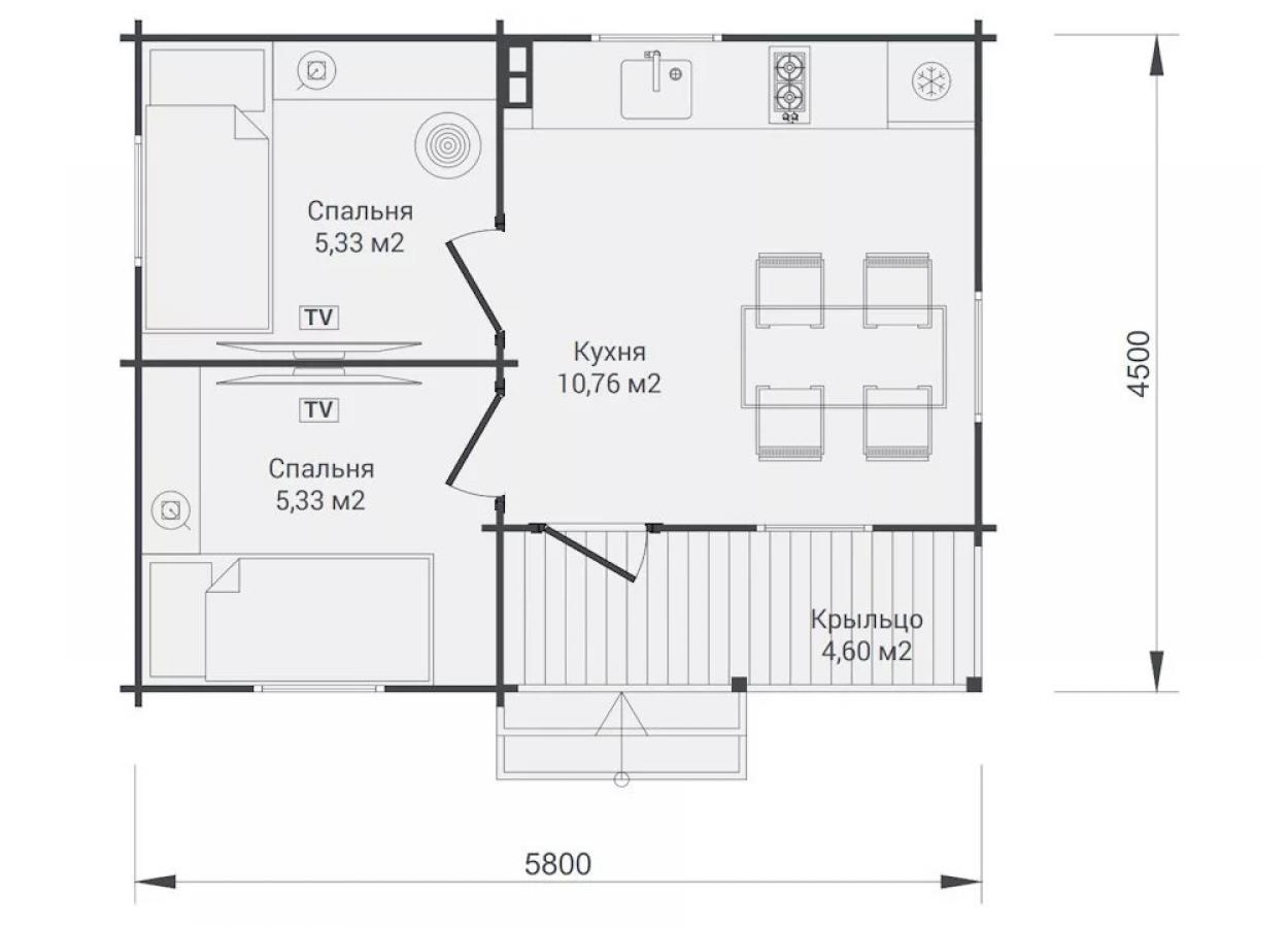
Шелковый путь 5.80×4.40, 26.10м2
цена от
руб. / мес *
Новинка
Появления этого дома ждали давно. Ждали люди, уже не первый день находящиеся в пути, в поиске простого счастья. Казалось, что вот-вот покажется их караван, остановится у порога, измученные дорогой путники поднимутся на крыльцо дома, стряхивая с себя пыль и усталость. Давайте пройдем за ними, по «Шелковому пути».
На крылечке (3,6 м²) переобуемся, оставим верхнюю одежду. Здесь можно задержаться, посидеть в тени, перевести дух. И проследовать в гостиную (10,7 м²). Этот зал – настоящий караван-сарай. Здесь есть всё: и дух покоя, и вкус сытной пищи, атмосфера свежести и радушие обстановки.
Насладившись и утолив жажду комфортной дачной жизни, удовлетворенные путники разойдутся по покоям-спальням. Здесь их две (по 5,3 м²).
Чтобы утром, великолепно отдохнув в чистоте натурального дерева, отправиться дальше, к новым свершениям и достатку.
А где ваш «Шелковый Путь»?
Параметры дома:
- S застройки: 26.10 м.кв.
- S дома всего: 25.40 м.кв.
- S помещений: 21.40 м.кв.
- S террас, крылец, балконов, навесов: 4.00 м.кв.
|
Шелковый Путь 20 306 руб. смотреть полностью |
|---|
| Наружные стены |
|
Профилированный строганный мини-брус камерной сушки сечением 44х135 мм |
| Балки перекрытия |
|
Доска из древесины хвойных пород дерева естественной сушки сечением 50х150 мм |
| Полы |
|
Доска пола 27х135, влажность 12-14%. |
| Стропильная система |
|
Строганный мини-брус камерной сушки сечением 45х140 мм, влажность 12-14% |
| Кровельный настил |
|
Имитация бруса камерной сушки толщиной 20 мм. |
| Кровля |
|
Гибкая черепица SHINGLAS, серия Оптима (цвет красный, серый или коричневый), монтируется на кровельный настил. |
| Подвенечный оклад (обвязка) |
|
Брус из древесины хвойных пород дерева естественной сушки сечением 100х150 мм |
| Наружные стены (высота стены 2.295 м), фронтоны и перегородки |
|
Профилированный строганный мини-брус камерной сушки сечением 44х135 мм, влажность 12-14%, монтируется по технологии четырехстороннего замкового паза с ветровым замком (теплый не продуваемый угол). |
| Балки перекрытия (лаги) |
|
Доска из древесины хвойных пород дерева естественной сушки сечением 50х150 мм, (шаг 600 мм), крепятся при помощи металлических опор бруса. |
| Полы |
|
Доска пола 27х135, влажность 12-14%. |
| Стропильная система/прогоны |
|
Строганный мини-брус камерной сушки сечением 45х140 мм, влажность 12-14%. |
| Кровельный настил |
|
Имитация бруса камерной сушки толщиной 20 мм, влажность 12-14%. |
| Кровля |
|
Гибкая черепица SHINGLAS, серия Оптима (цвет красный, серый или коричневый), монтируется на кровельный настил |
| Ветровая и торцевая планки |
|
Строганная доска камерной сушки из хвойных пород дерева мм, влажность 12-14%. |
| Входная дверь |
|
Деревянный филенчатый дверной блок из массива сосны 2080х880 мм со всей необходимой фурнитурой, петли, врезной замок. |
| Межкомнатные двери |
|
Деревянный филенчатый дверной блок из массива сосны 2080х880 мм со всей необходимой фурнитурой; петли, ручка, фиксатор. |
| Окна |
|
Деревянный оконный блок из массива сосны с одинарным остеклением h - 1000 мм (укомплектован ручками и запором). |
| Наличники |
|
Строганная доска камерной сушки из хвойных пород дерева мм, влажность 12-14%. |
| Крыльцо |
|
Столбы 100х100 из бруса. Декоративное ограждение. |
ХАРАКТЕРИСТИКИ
| Технология | Брус |
|---|---|
| Габаритные размеры | 5.80×4.40 |
| Площадь застройки (м.кв.) | 25.40 |
| Общая площадь (м.кв.) | 26.10 |
| Срок строительства, дн. | 30 |
ВЫБЕРИТЕ КОМПЛЕКТАЦИЮ
20 306 руб.
По Вашему желанию возможно внести любые изменения в базовый проект, включая перепланировку, что позволит полностью преобразить дом как снаружи, так и внутри.
* Кредит на покупку домокомплекта от Белагропромбанка. Срок кредитования до 15 лет. Выгодная ставка по кредиту. Расчет ориентировочный и не является окончательным. Не является офертой.