Вы здесь

Дом в Захарово 26.0 x 23.0

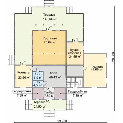
ХАРАКТЕРИСТИКИ

Габаритные размеры 26.0х23.0
Площадь застройки (м.кв.) 456.94
Общая площадь (м.кв.) 706.58

По Вашему желанию возможно внести любые изменения в проект, включая перепланировку, что позволит полностью преобразить дом как снаружи, так и внутри.

Подпишись на email-рассылку