Вы здесь

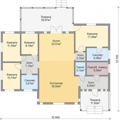
Швеция 16.5 x 15.7

Лаконичная архитектура, четко выверенные пропорции, оригинальный декор фасада и функциональная планировка интерьеров делают этот дом привлекательным на вид и очень удобным для жизни.
Фасад и интерьеры этого одноэтажного коттеджа дома выдержаны в скандинавском стиле – лаконичном, сдержанном, с подчеркнутым акцентом на простоту форм и красоту натуральных материалов. Такое решение было выбрано отнюдь не случайно. Проект дома был создан специально для строительства на севере Швеции. Вполне естественно, что при его разработке были учтены архитектурные традиции этой страны, менталитет и образ жизни ее народа.
Центральную часть дома занимает единое пространство кухни, столовой и гостиной. Эти зоны в современных скандинавских домах, как правило, не разграничивают стенами. Студийная планировка создает максимальные удобства для совместного досуга всех членов семьи. Поэтому при разработке проекта во главу угла был поставлен принцип открытости пространства: минимум перегородок, максимум простора! А вот приватные зоны дома – спальня родителей и комнаты детей в соответствии со скандинавской традицией разнесены по разным сторонам дома
Характерная черта скандинавского загородного дома – наличие рекреационной зоны на заднем дворе с обязательной террасой или патио. Эта особенность также отражена в проекте. Фасад, обращенный в сторону внутреннего двора, имеет выход на просторную открытую площадку для летнего отдыха. Отсутствие крыши – не проблема. Для защиты от дождя или яркого солнца можно установить маркизу.
В отделке загородных домов шведы в отличие от нас используют нестроганные деревянные доски, установленные вертикально, внахлест. А наши архитекторы предложили весьма оригинальный ход. В отделке фасада фальшбрус, уложенный горизонтально, перемежается с деревянными декоративными элементами, установленными вертикально. Так, совместив шведские и русские традиции, удалось придать дому нарядную и выразительную внешность.

ХАРАКТЕРИСТИКИ

Габаритные размеры 16.5х15.7
Площадь застройки (м.кв.) 211.57
Общая площадь (м.кв.) 187.10

По Вашему желанию возможно внести любые изменения в проект, включая перепланировку, что позволит полностью преобразить дом как снаружи, так и внутри.

Подпишись на email-рассылку