Вы здесь

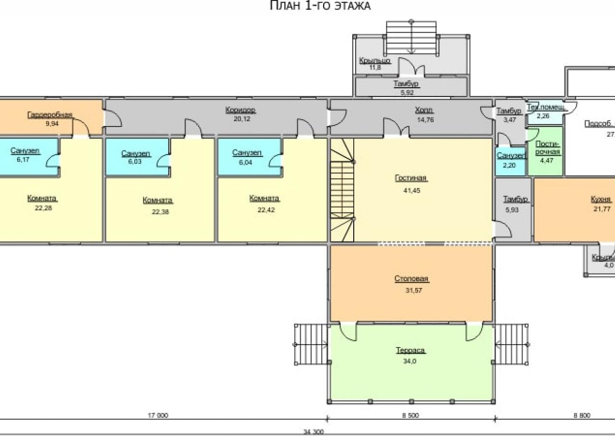
Эко-отель на Оке 34.3 x 18.6

ХАРАКТЕРИСТИКИ

Габаритные размеры 34.3х18.6
Площадь застройки (м.кв.) 352.08
Общая площадь (м.кв.) 696.58

По Вашему желанию возможно внести любые изменения в проект, включая перепланировку, что позволит полностью преобразить дом как снаружи, так и внутри.

Подпишись на email-рассылку