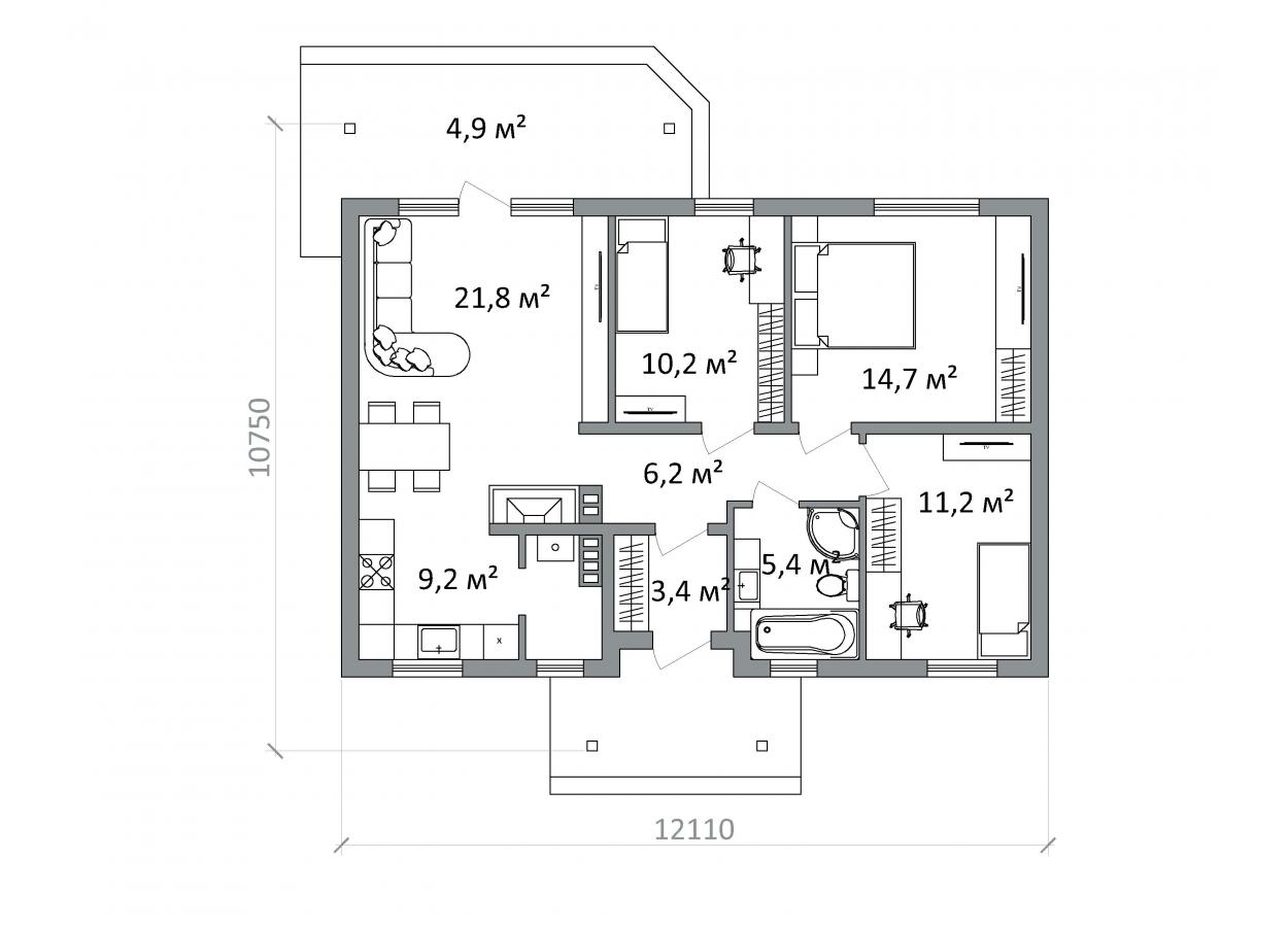
Форт 1 К 9.45×12.11, 86.90м2

Быстрое и экономичное строительство обеспечено простой формой дома Форт 1 и традиционной двускатной крышей. Интерьер тонко разделяет зону сна и дневную часть. В проект по Вашему желанию могут быть внесены изменения.

Теплый контур+

201 292 руб.

смотреть полностью

Аляска

211 680 руб.

смотреть полностью
Фундамент:

Буронабивной.

Буронабивной.

Пол:

Усиленная конструкция пола
ОСП - 22мм.

Усиленная конструкция пола
ОСП - 22 мм.

Стены:

Усиленная конструкция стен и перекрытий.

Усиленная конструкция стен и перекрытий.

Утепление:

Стены 150 мм; Пол 150 мм; Потолок 150 мм.

Стены 200 мм; Пол 200 мм; Потолок 200 мм;

Отделка стен дома снаружи:

Имитация бруса.

Имитация Бруса 17 мм.

Отделка стен и потолка:

Имитация бруса.

Стены: ОСП 9 мм + ГКЛВ 12.5 мм.Потолок: вагонка 12 мм.

Окна:

 Пластиковые, двухкамерные.

 Пластиковые, двухкамерные.

Кровля:

Металлочерепица "Монтерей".

Металлочерепица "Монтерей".

Терраса:

Доска пола террасная.

Доска пола террасная.

Фундамент:

Буронабивной.

Полы:

ОСП 22 мм.
Балки - брус 150х50 с шагом 400мм
Пароизоляционная мембрана
Балка пола - пиломатериал технической сушки
Минеральная вата 150 мм
Гидро-ветроизоляционная мембрана
Черновой пол 10 мм;

Стены:

Устройство вентиляционного зазора
Усиленные конструкции наружных стен 35х150 мм
Гидро-ветроизоляционная мембрана
Минеральная вата 150 мм (плита)
Пиломатериал технической сушки
Пароизоляционная мембрана
Внутренняя обшивка: ОСП 9 мм + ГКЛВ 12.5 мм.
Наружная обшивка: Имитация бруса 17 мм

Перекрытие:

Балка пер-я - пиломатериал технической сушки
Минеральная вата 100 мм (плита)
Пароизоляционная мембрана
Отделка потолка: имитация бруса 17 мм.

Перегородки:

Пиломатериал технической сушки
Звукоизоляция
Отделка: ОСП 9 мм + ГКЛВ 12.5 мм.

Крыша:

Металлочерепица "Монтерей"
Карнизные планки по скатам кровли для водосточной системы (в цвет кровли)
Устройство гидроизоляции и вентиляции подкровельного пространства

Двери:

Входная - металлическая
Межкомнатные - деревянные филенчатые.

Окна:

ПВХ с двухкамерным стеклопакетом

Отливы:

 Установка под окнами и по периметру фундамента из листа оцинкованного полиэстр.

Терраса:

Доска пола террасная.

Фундамент:

 Буронабивной.

Полы:

ОСП - 22 мм.
Тавровые балки усиленные
Пароизоляционная мембрана
Балка пола - пиломатериал технической сушки.
Минеральная вата 200 мм (плита)
Гидро-ветроизоляционная мембрана
Черновой пол 10 мм;

Стены:

Наружная отделка: Имитация бруса 17 мм
Устройство вентиляционного зазора
Усиленные конструкции наружных стен 35х150 мм
Гидро-ветроизоляционная мембрана
Минеральная вата 200 мм (плита)
Пиломатериал технической сушки.
Пароизоляционная мембрана
Внутренняя отделка: Стены: ОСП 9 мм + ГКЛВ 12.5 мм.

Перекрытие:

Балка пер-я - пиломатериал технической сушки
Минеральная вата 100 мм (плита)
Пароизоляционная мембрана
Отделка потолка: имитация бруса 17 мм.

Перегородки:

Пиломатериал технической сушки.
Звукоизоляция
Отделка: ОСП 9 мм + ГКЛВ 12.5 мм.

Крыша:

Металлочерепица "Монтерей"
Карнизные планки по скатам кровли для водосточной системы
Устройство гидроизоляции и вентиляции подкровельного пространства

Двери:

Входная - металлическая
Межкомнатные - деревянные филенчатые.

Окна:

ПВХ с двухкамерным стеклопакетом.

Отливы:

Отливы (белые/коричневые) подоконные, по фундаменту с покрытием полиэстер.

Терраса:

Доска пола террасная.

ХАРАКТЕРИСТИКИ

Технология Каркас
Габаритные размеры 9.45×12.11
Площадь застройки (м.кв.) 128.00
Общая площадь (м.кв.) 86.90
Срок строительства, дн. 40
Печать
1
3

201 292 руб.

По Вашему желанию возможно внести любые изменения в базовый проект, включая перепланировку, что позволит полностью преобразить дом как снаружи, так и внутри.

* Кредит на покупку домокомплекта от Белагропромбанка. Срок кредитования до 15 лет. Выгодная ставка по кредиту. Расчет ориентировочный и не является окончательным. Не является офертой.

Подпишись на email-рассылку